13764 River Grove Ln, Olive Branch, MS 38654
Toggle Navigation
Images
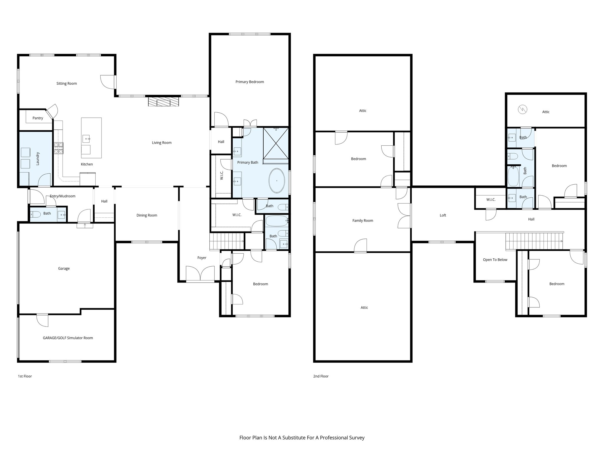
Floor Plans
Virtual Tour
Map
13764 River Grove Ln
Olive Branch, MS 38654
Scroll to Content
Images
Slideshow
Photo Grid
Hide
Previous
Next
Show more
Floor Plans
Slideshow
Photo Grid
Hide
Previous
Next
Virtual Tour